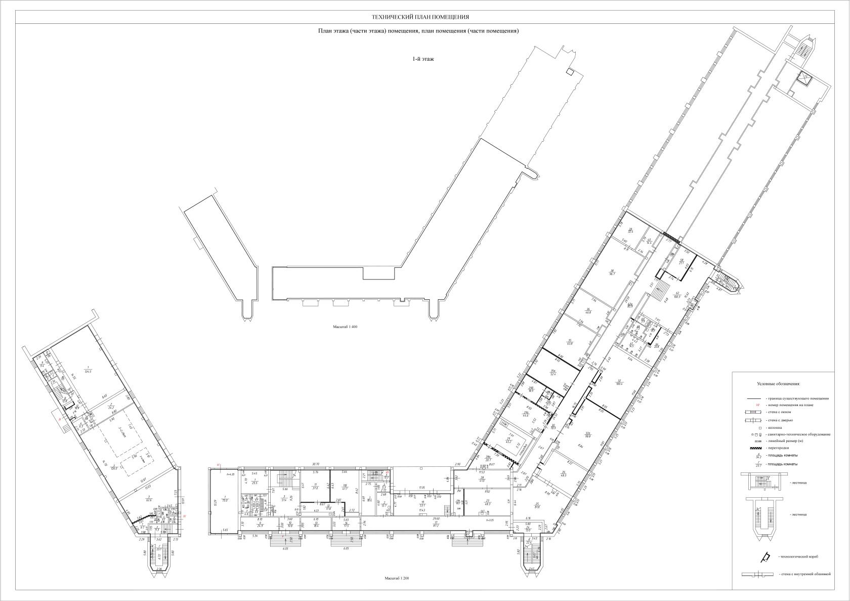
Примеры документов по испытаниям ВНИИИМТ Помещения
Сведения об оснащенности испытательного центра
помещениями для проведения испытаний и исследований (в части расширяемой области аккредитации)
|
№ комн. |
Назначение помещения (В том числе виды проводимых испытаний, для приемки и хранения средств измерений) |
Специальное или приспособленное |
Место нахождения или иная уникальная идентификация |
Площадь (кв.м.) |
Перечень контролируемых параметров в помещении |
Наличие специального оборудования (например, вентиляционного, защиты от помех) |
Право собственности или иное законное основание, предусматривающее право владения и (или) пользования |
Примечания |
|
103 |
ЭМС Проведение испытаний по электромагнитной совместимости |
специальное |
115478, Москва, Каширское шоссе, д.24, стр. 16. |
45.7 |
Температура, влажность, давление |
Приточно-вытяжная вентиляция, защитное заземление |
Свидетельство о гос. регистрации права от 30.01.2013 г. Вид права: Свидетельство о гос. регистрации права от 30.01.2013 г. № 77-АО 490119. Вид права: оперативное управление Выписка из ЕГРН от 04.06.2025г. No КУВИ-001/2025-117825004 |
- |
|
119 |
ЭМС Проведение испытаний по электромагнитной совместимости |
специальное |
115478, Москва, Каширское шоссе, д.24, стр. 16. |
47.5 |
Температура, влажность, давление |
Приточно-вытяжная вентиляция, защитное заземление |
Свидетельство о гос. регистрации права от 30.01.2013 г. Вид права: Свидетельство о гос. регистрации права от 30.01.2013 г. № 77-АО 490119.Вид права: оперативное управление Выписка из ЕГРН от 04.06.2025г. No КУВИ-001/2025-117825004 |
- |
|
106 |
Прием образцов |
приспособленное |
115478, Москва, Каширское шоссе, д.24, стр. 16. |
17,7 |
Температура, влажность, давление |
Холодильник. |
Свидетельство о гос. регистрации права от 30.01.2013 г. Вид права: Свидетельство о гос. регистрации права от 30.01.2013 г. № 77-АО 490119.Вид права: оперативное управление Выписка из ЕГРН от 04.06.2025г. No КУВИ-001/2025-117825004 |
- |
|
413Б (4 этаж) |
Архив дел по государственным заданиям
|
специальное |
115478, Москва, Каширское шоссе, д.24, стр. 16. |
39.2 |
Температура, влажность, давление |
Приточно-вытяжная вентиляция |
Свидетельство о гос. регистрации права от 30.01.2013 г. Вид права: Свидетельство о гос. регистрации права от 30.01.2013 г. № 77-АО 490119.Вид права: оперативное управление Выписка из ЕГРН от 04.06.2025г. No КУВИ-001/2025-117825004 |
- |
|
413А (4 этаж) |
Архив дел по внебюджетной деятельности |
приспособленное |
115478, Москва, Каширское шоссе, д.24, стр. 16. |
|
Температура, влажность, давление |
Приточно-вытяжная вентиляция |
Свидетельство о гос. регистрации права от 30.01.2013 г. Вид права: Свидетельство о гос. регистрации права от 30.01.2013 г. № 77-АО 490119.Вид права: оперативное управление Выписка из ЕГРН от 04.06.2025г. No КУВИ-001/2025-117825004 |
- |
|
120 |
Испытания приборов и аппаратов для функциональной диагностики и физиотерапии. Тестирование ПО. Оформление результатов испытаний. |
специальное |
115478, Москва, Каширское шоссе, д.24, стр. 16. |
127,3 |
Температура, влажность, давление |
Приточно-вытяжная вентиляция, защитное заземление |
Свидетельство о гос. регистрации права от 30.01.2013 г. № 77-АО 490119.Вид права: Свидетельство о гос. регистрации права от 30.01.2013 г. Вид права: оперативное управление Выписка из ЕГРН от 04.06.2025г. No КУВИ-001/2025-117825004 |
- |
|
118 |
Испытания передвижных комплексов медицинского назначения Общетехнические виды испытаний медицинских изделий Оформление результатов испытаний |
специальное |
115478, Москва, Каширское шоссе, д.24, стр. 16. |
62,1
|
Температура, влажность, давление |
Приточно-вытяжная вентиляция, защитное заземление |
Свидетельство о гос. регистрации права от 30.01.2013 г. Вид права: Свидетельство о гос. регистрации права от 30.01.2013 г. № 77-АО 490119.Вид права: оперативное управление Выписка из ЕГРН от 04.06.2025г. No КУВИ-001/2025-117825004 |
- |
|
- |
Помещение испытаний на устойчивость к механическим воздействиям |
специальное |
115478, Москва, Каширское шоссе, д.24, стр. 16. |
20,7
|
Температура, влажность, давление |
Приточно-вытяжная вентиляция, защитное заземление |
Свидетельство о гос. регистрации права от 30.01.2013 г. Вид права: Свидетельство о гос. регистрации права от 30.01.2013 г. № 77-АО 490119.Вид права: оперативное управление Выписка из ЕГРН от 04.06.2025г. No КУВИ-001/2025-117825004 |
- |
|
104 |
Общетехнические виды испытаний медицинских изделий Оформление результатов испытаний |
специальное |
115478, Москва, Каширское шоссе, д.24, стр. 16. |
98,8 |
Температура, влажность, давление |
Приточно-вытяжная вентиляция, кондиционер, защитное заземление |
Свидетельство о гос. регистрации права от 30.01.2013 г. № 77-АО 490119.Вид права: оперативное управление Выписка из ЕГРН от 04.06.2025г. No КУВИ-001/2025-117825004 |
- |
|
107 |
Общетехнические виды испытаний медицинских изделий Оформление результатов испытаний |
специальное |
115478, Москва, Каширское шоссе, д.24, стр. 16. |
53,3 |
Температура, влажность, давление |
Приточно-вытяжная вентиляция, кондиционер, защитное заземление |
Свидетельство о гос. регистрации права от 30.01.2013 г. № 77-АО 490119.Вид права: оперативное управление Выписка из ЕГРН от 04.06.2025г. No КУВИ-001/2025-117825004 |
- |
|
116 |
Испытания приборов и аппаратов для лучевой диагностики терапии Оформление результатов испытаний |
специальное |
115478, Москва, Каширское шоссе, д.24, стр. 16. |
78,68 |
Температура, влажность, давление |
Приточно-вытяжная вентиляция, защитное заземление |
Свидетельство о гос. регистрации права от 30.01.2013 г. № 77-АО 490119.Вид права: оперативное управление Выписка из ЕГРН от 04.06.2025г. No КУВИ-001/2025-117825004 |
- |
|
113 |
Испытания медицинских материалов, инструментов |
специальное |
115478, Москва, Каширское шоссе, д.24, стр. 16. |
12,7 |
Температура, влажность, давление |
Приточно-вытяжная вентиляция, защитное заземление |
Свидетельство о гос. регистрации права от 30.01.2013 г. № 77-АО 490119.Вид права: оперативное управление Выписка из ЕГРН от 04.06.2025г. No КУВИ-001/2025-117825004 |
- |
|
112 |
Испытания медицинских материалов, инструментов |
специальное |
115478, Москва, Каширское шоссе, д.24, стр. 16. |
42,3 |
Температура, влажность, давление |
Приточно-вытяжная вентиляция, защитное заземление |
Свидетельство о гос. регистрации права от 30.01.2013 г. № 77-АО 490119.Вид права: оперативное управление Выписка из ЕГРН от 04.06.2025г. No КУВИ-001/2025-117825004 |
Подготовка образцов перед испытаниями, проверка внешнего вида, органолептических характеристик, линейных размеров, массы, объема, физико-механических характеристик, герметичности, абсорбционной и сорбционной способности, капиллярности. |
|
105 |
Испытания медицинских материалов, инструментов |
специальное |
115478, Москва, Каширское шоссе, д.24, стр. 16. |
35,4 |
Температура, влажность, давление |
Приточно-вытяжная вентиляция, защитное заземление |
Свидетельство о гос. регистрации права от 30.01.2013 г. № 77-АО 490119.Вид права: оперативное управление Выписка из ЕГРН от 04.06.2025г. No КУВИ-001/2025-117825004 |
- |
|
308 |
Гематологические и биохимические испытания и исследования |
специальное, оформление и обработка результатов |
115478, Москва, Каширское шоссе, д.24, стр. 16. |
22,7 |
Температура, влажность, давление |
Приточно-вытяжная вентиляция, защитное заземление |
Свидетельство о гос. регистрации права от 30.01.2013 г. № 77-АО 490119.Вид права: оперативное управление Выписка из ЕГРН от 04.06.2025г. No КУВИ-001/2025-117825004 |
Подготовка проб, посуды реактивов. Проведение исследований по гемолитическому действию, РНДТК, измерение рН |
|
309 |
Комната хранения реактивов и расходных материалов, подготовка лабораторной посуды для исследований. |
специальное |
115478, Москва, Каширское шоссе, д.24, стр. 16. |
9,0 |
Температура, влажность, давление |
Приточно-вытяжная вентиляция, защитное заземление |
Свидетельство о гос. регистрации права от 30.01.2013 г. № 77-АО 490119.Вид права: оперативное управление Выписка из ЕГРН от 04.06.2025г. No КУВИ-001/2025-117825004 |
Подготовка проб, посуды реактивов, хранение реактивов |
|
311 |
Физико-химические испытания и исследования |
специальное, оформление и обработка результатов |
115478, Москва, Каширское шоссе, д.24, стр. 16. |
23,1 |
Температура, влажность, давление |
Приточно-вытяжная вентиляция, защитное заземление |
Свидетельство о гос. регистрации права от 30.01.2013 г. № 77-АО 490119.Вид права: оперативное управление Выписка из ЕГРН от 04.06.2025г. No КУВИ-001/2025-117825004 |
Определение металлов |
|
314 |
Санитарно-химические испытания и исследования |
специальное оформление и обработка результатов |
115478, Москва, Каширское шоссе, д.24, стр. 16. |
52.3 |
Температура, влажность, давление |
Приточно-вытяжная вентиляция, защитное заземление |
Свидетельство о гос. регистрации права от 30.01.2013 г. № 77-АО 490119.Вид права: оперативное управление Выписка из ЕГРН от 04.06.2025г. No КУВИ-001/2025-117825004 |
подготовка проб, посуды реактивов. ИК-, УФ-спектроскопия, восстановительные примеси, изменение pH, приготовление растворов, весы, ротационно-вакуумный испаритель |
|
313 |
Хроматографические методы анализа |
специальное, оформление и обработка результатов |
115478, Москва, Каширское шоссе, д.24, стр. 16. |
11,9 |
Температура, влажность, давление |
Приточно-вытяжная вентиляция, защитное заземление |
Свидетельство о гос. регистрации права от 30.01.2013 г. № 77-АО 490119.Вид права: оперативное управление Выписка из ЕГРН от 04.06.2025г. No КУВИ-001/2025-117825004 |
ГХ и ГХ-МС |
|
322 |
Хроматографические методы анализа |
специальное, оформление и обработка результатов |
115478, Москва, Каширское шоссе, д.24, стр. 16. |
34,3 |
Температура, влажность, давление |
Приточно-вытяжная вентиляция, защитное заземление |
Свидетельство о гос. регистрации права от 30.01.2013 г. № 77-АО 490119.Вид права: оперативное управление Выписка из ЕГРН от 04.06.2025г. No КУВИ-001/2025-117825004 |
ГХ и ВЭЖХ
|
|
321 |
Комната постановки вытяжки/экстрактов в асептических условиях |
специальное, оформление и обработка результатов |
115478, Москва, Каширское шоссе, д.24, стр. 16. |
18,6 |
Температура, влажность, давление |
Приточно-вытяжная вентиляция, защитное заземление |
Свидетельство о гос. регистрации права от 30.01.2013 г. № 77-АО 490119.Вид права: оперативное управление Выписка из ЕГРН от 04.06.2025г. No КУВИ-001/2025-117825004 |
Подготовка проб в асептических условиях |
|
312 |
Комната постановки вытяжки/экстрактов |
специальное |
115478, Москва, Каширское шос-се, д.24, стр. 16. |
10,8 |
Температура, влажность, давление |
Приточно-вытяжная вентиляция, защитное заземление |
Свидетельство о гос. регистрации права от 30.01.2013 г. № 77-АО 490119.Вид права: оперативное управление Выписка из ЕГРН от 04.06.2025г. No КУВИ-001/2025-117825004 |
- |
|
310 |
Санитарно-химические ис-пытания и исследования |
специальное, оформление и обработка результатов |
115478, Москва, Каширское шос-се, д.24, стр. 16. |
13,1 |
Температура, влажность, давление |
Приточно-вытяжная вентиляция, защитное заземление |
Свидетельство о гос. регистрации права от 30.01.2013 г. № 77-АО 490119.Вид права: оперативное управление Выписка из ЕГРН от 04.06.2025г. No КУВИ-001/2025-117825004 |
Место для нового оборудования. Подготовка растворов |
|
333 |
Кабинет руководителя Испытательного Центра |
приспособленное |
115478, Москва, Каширское шос-се, д.24, стр. 16. |
10,6 |
Не контролируется |
Приточно-вытяжная вентиляция, |
Свидетельство о гос. регистрации права от 30.01.2013 г. № 77-АО 490119.Вид права: оперативное управление Выписка из ЕГРН от 04.06.2025г. No КУВИ-001/2025-117825004 |
- |
|
335 |
Кабинет СМК |
приспособленное |
115478, Москва, Каширское шос-се, д.24, стр. 16. |
11,0 |
Не контролируется |
Приточно-вытяжная вентиляция, |
Свидетельство о гос. регистрации права от 30.01.2013 г. № 77-АО 490119.Вид права: оперативное управление Выписка из ЕГРН от 04.06.2025г. No КУВИ-001/2025-117825004 |
- |
|
|
Лаборатория микробиологических исследований |
|
|
|
|
|
|
|
|
1 |
Препараторская (приготовление дез.растворов) |
специальное |
115478, Москва, Каширское шоссе, д.24, стр. 16. |
5.4 |
Температура, влажность, давление |
Приточно-вытяжная вентиляция |
Свидетельство о гос. регистрации права от 30.01.2013 г. № 77-АО 490119.Вид права: оперативное управление Выписка из ЕГРН от 04.06.2025г. No КУВИ-001/2025-117825004 |
- |
|
2 |
Моечная |
специальное |
115478, Москва, Каширское шоссе, д.24, стр. 16. |
17.0 |
Температура, влажность, давление |
Приточно-вытяжная вентиляция |
Свидетельство о гос. регистрации права от 30.01.2013 г. № 77-АО 490119.Вид права: оперативное управление Выписка из ЕГРН от 04.06.2025г. No КУВИ-001/2025-117825004 |
- |
|
3 |
Коридор |
специальное |
115478, Москва, Каширское шоссе, д.24, стр. 16. |
29.2 |
Температура, влажность, давление |
Приточно-вытяжная вентиляция |
Свидетельство о гос. регистрации права от 30.01.2013 г. № 77-АО 490119.Вид права: оперативное управление Выписка из ЕГРН от 04.06.2025г. No КУВИ-001/2025-117825004 |
- |
|
4 |
Приготовление и розлив питательных сред |
специальное |
115478, Москва, Каширское шоссе, д.24, стр. 16. |
21.7 |
Температура, влажность, давление |
Приточно-вытяжная вентиляция |
Свидетельство о гос. регистрации права от 30.01.2013 г. № 77-АО 490119.Вид права: оперативное управление Выписка из ЕГРН от 04.06.2025г. No КУВИ-001/2025-117825004 |
- |
|
5 |
Хранение и проверка стерильности питательных сред |
специальное |
115478, Москва, Каширское шоссе, д.24, стр. 16. |
10.7 |
Температура, влажность, давление |
Приточно-вытяжная вентиляция |
Свидетельство о гос. регистрации права от 30.01.2013 г. № 77-АО 490119.Вид права: оперативное управление Выписка из ЕГРН от 04.06.2025г. No КУВИ-001/2025-117825004 |
- |
|
6 |
Бокс №1. Помещение 6 Проведение исследований питательный сред |
специальное |
115478, Москва, Каширское шоссе, д.24, стр. 16. |
12.0 |
Температура, влажность, давление |
Приточно-вытяжная вентиляция Подача и отвод стерильного воздуха через стерилизующие фильтры |
Свидетельство о гос. регистрации права от 30.01.2013 г. № 77-АО 490119.Вид права: оперативное управление Выписка из ЕГРН от 04.06.2025г. No КУВИ-001/2025-117825004 |
- |
|
7 |
Бокс №2. Помещение 7 Проведение исследований стерильности МИ |
специальное |
115478, Москва, Каширское шоссе, д.24, стр. 16. |
12.0 |
Температура, влажность, давление |
Приточно-вытяжная вентиляция Подача и отвод стерильного воздуха через стерилизующие фильтры |
Свидетельство о гос. регистрации права от 30.01.2013 г. № 77-АО 490119.Вид права: оперативное управление Выписка из ЕГРН от 04.06.2025г. No КУВИ-001/2025-117825004 |
- |
|
8 |
Бокс №3. Помещение 8 Проведение исследований контаминации МИ, бактериальная фильтрация |
специальное |
115478, Москва, Каширское шоссе, д.24, стр. 16. |
12.0 |
Температура, влажность, давление |
Приточно-вытяжная вентиляция Подача и отвод стерильного воздуха через стерилизующие фильтры |
Свидетельство о гос. регистрации права от 30.01.2013 г. № 77-АО 490119.Вид права: оперативное управление Выписка из ЕГРН от 04.06.2025г. No КУВИ-001/2025-117825004 |
- |
|
9 |
Предбокс |
специальное |
115478, Москва, Каширское шоссе, д.24, стр. 16. |
2 |
Температура, влажность, давление |
Приточно-вытяжная вентиляция |
Свидетельство о гос. регистрации права от 30.01.2013 г. № 77-АО 490119.Вид права: оперативное управление Выписка из ЕГРН от 04.06.2025г. No КУВИ-001/2025-117825004 |
- |
|
10 |
Стерилизационная (питательных сред и лабораторной посуды) |
специальное |
115478, Москва, Каширское шоссе, д.24, стр. 16. |
6.3 |
Температура, влажность, давление |
Приточно-вытяжная вентиляция |
Свидетельство о гос. регистрации права от 30.01.2013 г. № 77-АО 490119.Вид права: оперативное управление Выписка из ЕГРН от 04.06.2025г. No КУВИ-001/2025-117825004 |
- |
|
11 |
Технический коридор |
специальное |
115478, Москва, Каширское шоссе, д.24, стр. 16. |
3 |
Температура, влажность, давление |
Приточно-вытяжная вентиляция |
Свидетельство о гос. регистрации права от 30.01.2013 г. № 77-АО 490119.Вид права: оперативное управление Выписка из ЕГРН от 04.06.2025г. No КУВИ-001/2025-117825004 |
- |
|
12 |
Холодильники для хранения питательных сред и диагностических препаратов |
специальное |
115478, Москва, Каширское шоссе, д.24, стр. 16. |
6.6 |
Температура, влажность, давление |
Приточно-вытяжная вентиляция |
Свидетельство о гос. регистрации права от 30.01.2013 г. № 77-АО 490119.Вид права: оперативное управление Выписка из ЕГРН от 04.06.2025г. No КУВИ-001/2025-117825004 |
- |
|
13 |
Автоклавная (обеззараживание отходов) |
специальное |
115478, Москва, Каширское шоссе, д.24, стр. 16. |
9.3 |
Температура, влажность, давление |
Приточно-вытяжная вентиляция |
Свидетельство о гос. регистрации права от 30.01.2013 г. № 77-АО 490119.Вид права: оперативное управление Выписка из ЕГРН от 04.06.2025г. No КУВИ-001/2025-117825004 |
- |
|
14 |
Коридор |
специальное |
115478, Москва, Каширское шоссе, д.24, стр. 16. |
43 |
Температура, влажность, давление |
Приточно-вытяжная вентиляция |
Свидетельство о гос. регистрации права от 30.01.2013 г. № 77-АО 490119.Вид права: оперативное управление Выписка из ЕГРН от 04.06.2025г. No КУВИ-001/2025-117825004 |
- |
|
15 |
Комната для хранения расходных материалов |
специальное |
115478, Москва, Каширское шоссе, д.24, стр. 16. |
10 |
Температура, влажность, давление |
Приточно-вытяжная вентиляция |
Свидетельство о гос. регистрации права от 30.01.2013 г. № 77-АО 490119.Вид права: оперативное управление Выписка из ЕГРН от 04.06.2025г. No КУВИ-001/2025-117825004 |
- |
|
16 |
Временное хранение отходов |
специальное |
115478, Москва, Каширское шоссе, д.24, стр. 16. |
3.2 |
Температура, влажность, давление |
Приточно-вытяжная вентиляция |
Свидетельство о гос. регистрации права от 30.01.2013 г. № 77-АО 490119.Вид права: оперативное управление Выписка из ЕГРН от 04.06.2025г. No КУВИ-001/2025-117825004 |
- |
|
17 |
Уборочный инвентарь (хранение в «чистой» зоне) |
специальное |
115478, Москва, Каширское шоссе, д.24, стр. 16. |
1.3 |
Температура, влажность, давление |
Приточно-вытяжная вентиляция |
Свидетельство о гос. регистрации права от 30.01.2013 г. № 77-АО 490119.Вид права: оперативное управление Выписка из ЕГРН от 04.06.2025г. No КУВИ-001/2025-117825004 |
- |
|
21 |
Санитарный пропусник |
специальное |
115478, Москва, Каширское шоссе, д.24, стр. 16. |
9 |
Температура, влажность, давление |
Приточно-вытяжная вентиляция |
Свидетельство о гос. регистрации права от 30.01.2013 г. № 77-АО 490119.Вид права: оперативное управление Выписка из ЕГРН от 04.06.2025г. No КУВИ-001/2025-117825004 |
- |
|
22 |
Санитарный пропусник, коридор |
специальное |
115478, Москва, Каширское шоссе, д.24, стр. 16. |
2 |
Температура, влажность, давление |
Приточно-вытяжная вентиляция |
Свидетельство о гос. регистрации права от 30.01.2013 г. № 77-АО 490119.Вид права: оперативное управление Выписка из ЕГРН от 04.06.2025г. No КУВИ-001/2025-117825004 |
- |
|
23 |
Душевая |
специальное |
115478, Москва, Каширское шоссе, д.24, стр. 16. |
2 |
Температура, влажность, давление |
Приточно-вытяжная вентиляция |
Свидетельство о гос. регистрации права от 30.01.2013 г. № 77-АО 490119.Вид права: оперативное управление Выписка из ЕГРН от 04.06.2025г. No КУВИ-001/2025-117825004 |
- |
|
25 |
Комната для идентификации микроорганизмов (бактериальная фильрация, проницаемость, микробиологическая чистота) |
специальное |
115478, Москва, Каширское шоссе, д.24, стр. 16. |
40 |
Температура, влажность, давление |
Приточно-вытяжная вентиляция |
Свидетельство о гос. регистрации права от 30.01.2013 г. № 77-АО 490119.Вид права: оперативное управление Выписка из ЕГРН от 04.06.2025г. No КУВИ-001/2025-117825004 |
- |
|
26 |
Прием и регистрация материала (проб) |
специальное |
115478, Москва, Каширское шоссе, д.24, стр. 16. |
23.7 |
Температура, влажность, давление |
Приточно-вытяжная вентиляция |
Свидетельство о гос. регистрации права от 30.01.2013 г. № 77-АО 490119.Вид права: оперативное управление Выписка из ЕГРН от 04.06.2025г. No КУВИ-001/2025-117825004 |
- |
|
27 |
Уборочный инвентарь (хранение в «грязной» зоне) |
специальное |
115478, Москва, Каширское шоссе, д.24, стр. 16. |
2.7 |
Температура, влажность, давление |
Приточно-вытяжная вентиляция |
Свидетельство о гос. регистрации права от 30.01.2013 г. № 77-АО 490119.Вид права: оперативное управление Выписка из ЕГРН от 04.06.2025г. No КУВИ-001/2025-117825004 |
- |
|
29 |
Шлюз для подачи стерильных питательных сред и растворов |
специальное |
115478, Москва, Каширское шоссе, д.24, стр. 16. |
2.1 |
Температура, влажность, давление |
Приточно-вытяжная вентиляция |
Свидетельство о гос. регистрации права от 30.01.2013 г. № 77-АО 490119.Вид права: оперативное управление Выписка из ЕГРН от 04.06.2025г. No КУВИ-001/2025-117825004 |
- |
|
|
Виварий 2ой этаж |
|
|
|
|
|
|
|
|
1 |
Гардеробная |
специальное |
115478, Москва, Каширское шоссе, д.24, стр. 16. |
7,6 |
Температура, влажность, давление |
Приточно-вытяжная вентиляция, защитное заземление |
Свидетельство о гос. регистрации права от 30.01.2013 г. № 77-АО 490119.Вид права: оперативное управление Выписка из ЕГРН от 04.06.2025г. No КУВИ-001/2025-117825004 |
- |
|
2 |
Кабинет заведующей |
специальное |
115478, Москва, Каширское шоссе, д.24, стр. 16. |
8,1 |
Температура, влажность, давление |
Приточно-вытяжная вентиляция, защитное заземление |
Свидетельство о гос. регистрации права от 30.01.2013 г. № 77-АО 490119.Вид права: оперативное управление Выписка из ЕГРН от 04.06.2025г. No КУВИ-001/2025-117825004 |
- |
|
3 |
Санузел персонала |
специальное |
115478, Москва, Каширское шоссе, д.24, стр. 16. |
2,3 |
Температура, влажность, давление |
Приточно-вытяжная вентиляция, защитное заземление |
Свидетельство о гос. регистрации права от 30.01.2013 г. № 77-АО 490119.Вид права: оперативное управление Выписка из ЕГРН от 04.06.2025г. No КУВИ-001/2025-117825004 |
- |
|
3.1 |
Помещение уборочного инвентаря |
специальное |
115478, Москва, Каширское шоссе, д.24, стр. 16. |
2,1 |
Температура, влажность, давление |
Приточно-вытяжная вентиляция, защитное заземление |
Свидетельство о гос. регистрации права от 30.01.2013 г. № 77-АО 490119.Вид права: оперативное управление Выписка из ЕГРН от 04.06.2025г. No КУВИ-001/2025-117825004 |
- |
|
5 |
Комната отдыха персонала |
специальное |
115478, Москва, Каширское шоссе, д.24, стр. 16. |
9,2 |
Температура, влажность, давление |
Приточно-вытяжная вентиляция, защитное заземление |
Свидетельство о гос. регистрации права от 30.01.2013 г. № 77-АО 490119.Вид права: оперативное управление Выписка из ЕГРН от 04.06.2025г. No КУВИ-001/2025-117825004 |
- |
|
6 |
Помещение для работы с документами |
специальное |
115478, Москва, Каширское шоссе, д.24, стр. 16. |
11,6 |
Температура, влажность, давление |
Приточно-вытяжная вентиляция, защитное заземление |
Свидетельство о гос. регистрации права от 30.01.2013 г. № 77-АО 490119.Вид права: оперативное управление Выписка из ЕГРН от 04.06.2025г. No КУВИ-001/2025-117825004 |
- |
|
7 |
Коридор |
специальное |
115478, Москва, Каширское шоссе, д.24, стр. 16. |
16,6 |
Температура, влажность, давление |
Приточно-вытяжная вентиляция, защитное заземление |
Свидетельство о гос. регистрации права от 30.01.2013 г. № 77-АО 490119.Вид права: оперативное управление Выписка из ЕГРН от 04.06.2025г. No КУВИ-001/2025-117825004 |
- |
|
|
Виварий 3ий этаж |
|
|
|
|
|
|
|
|
1 |
Помещения для персонала вивария |
специальное |
115478, Москва, Каширское шоссе, д.24, стр. 16. |
|
Температура, влажность, давление |
Приточно-вытяжная вентиляция, защитное заземление |
Свидетельство о гос. регистрации права от 30.01.2013 г. № 77-АО 490119.Вид права: оперативное управление Выписка из ЕГРН от 04.06.2025г. No КУВИ-001/2025-117825004 |
- |
|
1.1 |
Гардеробная |
специальное |
115478, Москва, Каширское шоссе, д.24, стр. 16. |
6,2 |
Температура, влажность, давление |
Приточно-вытяжная вентиляция, защитное заземление |
Свидетельство о гос. регистрации права от 30.01.2013 г. № 77-АО 490119.Вид права: оперативное управление Выписка из ЕГРН от 04.06.2025г. No КУВИ-001/2025-117825004 |
- |
|
1.2 |
Туалет |
специальное |
115478, Москва, Каширское шоссе, д.24, стр. 16. |
2,4 |
Температура, влажность, давление |
Приточно-вытяжная вентиляция, защитное заземление |
Свидетельство о гос. регистрации права от 30.01.2013 г. № 77-АО 490119.Вид права: оперативное управление Выписка из ЕГРН от 04.06.2025г. No КУВИ-001/2025-117825004 |
- |
|
1.4 |
Душевая |
специальное |
115478, Москва, Каширское шоссе, д.24, стр. 16. |
1,7 |
Температура, влажность, давление |
Приточно-вытяжная вентиляция, защитное заземление |
Свидетельство о гос. регистрации права от 30.01.2013 г. № 77-АО 490119.Вид права: оперативное управление Выписка из ЕГРН от 04.06.2025г. No КУВИ-001/2025-117825004 |
- |
|
1.5 |
Душевая |
специальное |
115478, Москва, Каширское шоссе, д.24, стр. 16. |
1,8 |
Температура, влажность, давление |
Приточно-вытяжная вентиляция, защитное заземление |
Свидетельство о гос. регистрации права от 30.01.2013 г. № 77-АО 490119.Вид права: оперативное управление Выписка из ЕГРН от 04.06.2025г. No КУВИ-001/2025-117825004 |
- |
|
2 |
Коридор |
специальное |
115478, Москва, Каширское шоссе, д.24, стр. 16. |
96,5 |
Температура, влажность, давление |
Приточно-вытяжная вентиляция |
Свидетельство о гос. регистрации права от 30.01.2013 г. № 77-АО 490119.Вид права: оперативное управление Выписка из ЕГРН от 04.06.2025г. No КУВИ-001/2025-117825004 |
- |
|
3 |
Шлюз для материалов |
специальное |
115478, Москва, Каширское шоссе, д.24, стр. 16. |
5,4 |
Температура, влажность, давление |
Приточно-вытяжная вентиляция |
Свидетельство о гос. регистрации права от 30.01.2013 г. № 77-АО 490119.Вид права: оперативное управление Выписка из ЕГРН от 04.06.2025г. No КУВИ-001/2025-117825004 |
- |
|
4 |
Помещение приема вновь поступающих животных |
специальное |
115478, Москва, Каширское шоссе, д.24, стр. 16. |
12,5 |
Температура, влажность, давление |
Приточно-вытяжная вентиляция |
Свидетельство о гос. регистрации права от 30.01.2013 г. № 77-АО 490119.Вид права: оперативное управление Выписка из ЕГРН от 04.06.2025г. No КУВИ-001/2025-117825004 |
- |
|
5 |
Помещение карантина и адаптации вновь поступающих животных |
специальное |
115478, Москва, Каширское шоссе, д.24, стр. 16. |
10,1 |
Температура, влажность, давление |
Приточно-вытяжная вентиляция |
Свидетельство о гос. регистрации права от 30.01.2013 г. № 77-АО 490119.Вид права: оперативное управление Выписка из ЕГРН от 04.06.2025г. No КУВИ-001/2025-117825004 |
- |
|
6 |
Помещение карантина и адаптации вновь поступающих животных |
специальное |
115478, Москва, Каширское шоссе, д.24, стр. 16. |
9,5 |
Температура, влажность, давление |
Приточно-вытяжная вентиляция |
Свидетельство о гос. регистрации права от 30.01.2013 г. № 77-АО 490119.Вид права: оперативное управление Выписка из ЕГРН от 04.06.2025г. No КУВИ-001/2025-117825004 |
- |
|
7 |
Коридор. Шлюз для материалов |
специальное |
115478, Москва, Каширское шоссе, д.24, стр. 16. |
8,7 |
Температура, влажность, давление |
Приточно-вытяжная вентиляция |
Свидетельство о гос. регистрации права от 30.01.2013 г. № 77-АО 490119.Вид права: оперативное управление Выписка из ЕГРН от 04.06.2025г. No КУВИ-001/2025-117825004 |
- |
|
8 |
Помещение для эвтаназии животных с холодильной камерой для сбора и хранения трупов животных, отходов |
специальное |
115478, Москва, Каширское шоссе, д.24, стр. 16. |
7,7 |
Температура, влажность, давление |
Приточно-вытяжная вентиляция |
Свидетельство о гос. регистрации права от 30.01.2013 г. № 77-АО 490119.Вид права: оперативное управление Выписка из ЕГРН от 04.06.2025г. No КУВИ-001/2025-117825004 |
- |
|
9 |
Помещение для обеззараживания |
специальное |
115478, Москва, Каширское шоссе, д.24, стр. 16. |
10,4 |
Температура, влажность, давление |
Приточно-вытяжная вентиляция |
Свидетельство о гос. регистрации права от 30.01.2013 г. № 77-АО 490119.Вид права: оперативное управление Выписка из ЕГРН от 04.06.2025г. No КУВИ-001/2025-117825004 |
- |
|
10 |
Помещение для мойки и дезинфекции оборудования и инвентаря |
специальное |
115478, Москва, Каширское шоссе, д.24, стр. 16. |
21,2 |
Температура, влажность, давление |
Приточно-вытяжная вентиляция |
Свидетельство о гос. регистрации права от 30.01.2013 г. № 77-АО 490119.Вид права: оперативное управление Выписка из ЕГРН от 04.06.2025г. No КУВИ-001/2025-117825004 |
- |
|
11 |
Помещение временного хранения чистого (обеззараженного) инвентаря для ухода за животными (клеток, поилок) |
специальное |
115478, Москва, Каширское шоссе, д.24, стр. 16. |
10,4 |
Температура, влажность, давление |
Приточно-вытяжная вентиляция |
Свидетельство о гос. регистрации права от 30.01.2013 г. № 77-АО 490119.Вид права: оперативное управление Выписка из ЕГРН от 04.06.2025г. No КУВИ-001/2025-117825004 |
- |
|
12 |
Шлюз для материалов |
специальное |
115478, Москва, Каширское шоссе, д.24, стр. 16. |
4,2 |
Температура, влажность, давление |
Приточно-вытяжная вентиляция |
Свидетельство о гос. регистрации права от 30.01.2013 г. № 77-АО 490119.Вид права: оперативное управление Выписка из ЕГРН от 04.06.2025г. No КУВИ-001/2025-117825004 |
- |
|
13 |
Помещение для хранения кормов |
специальное |
115478, Москва, Каширское шоссе, д.24, стр. 16. |
8,5 |
Температура, влажность, давление |
Приточно-вытяжная вентиляция |
Свидетельство о гос. регистрации права от 30.01.2013 г. № 77-АО 490119.Вид права: оперативное управление Выписка из ЕГРН от 04.06.2025г. No КУВИ-001/2025-117825004 |
- |
|
14 |
Помещение экспериментальных животных |
специальное |
115478, Москва, Каширское шоссе, д.24, стр. 16. |
13,7 |
Температура, влажность, давление |
Приточно-вытяжная вентиляция |
Свидетельство о гос. регистрации права от 30.01.2013 г. № 77-АО 490119.Вид права: оперативное управление Выписка из ЕГРН от 04.06.2025г. No КУВИ-001/2025-117825004 |
- |
|
15 |
Помещение экспериментальных животных |
специальное |
115478, Москва, Каширское шоссе, д.24, стр. 16. |
13,7 |
Температура, влажность, давление |
Приточно-вытяжная вентиляция |
Свидетельство о гос. регистрации права от 30.01.2013 г. № 77-АО 490119.Вид права: оперативное управление Выписка из ЕГРН от 04.06.2025г. No КУВИ-001/2025-117825004 |
- |
|
16 |
Помещение экспериментальных животных |
специальное |
115478, Москва, Каширское шоссе, д.24, стр. 16. |
11,8 |
Температура, влажность, давление |
Приточно-вытяжная вентиляция |
Свидетельство о гос. регистрации права от 30.01.2013 г. № 77-АО 490119.Вид права: оперативное управление Выписка из ЕГРН от 04.06.2025г. No КУВИ-001/2025-117825004
|
- |
|
17 |
Помещение экспериментальных животных |
специальное |
115478, Москва, Каширское шоссе, д.24, стр. 16. |
14,4 |
Температура, влажность, давление |
Приточно-вытяжная вентиляция |
Свидетельство о гос. регистрации права от 30.01.2013 г. № 77-АО 490119.Вид права: оперативное управление Выписка из ЕГРН от 04.06.2025г. No КУВИ-001/2025-117825004 |
- |
|
18 |
Помещение манипуляционной для изучения обменных процессов, взятия проб для анализа |
специальное |
115478, Москва, Каширское шоссе, д.24, стр. 16. |
7,8 |
Температура, влажность, давление |
Приточно-вытяжная вентиляция |
Свидетельство о гос. регистрации права от 30.01.2013 г. № 77-АО 490119.Вид права: оперативное управление Выписка из ЕГРН от 04.06.2025г. No КУВИ-001/2025-117825004 |
- |
|
19 |
Предоперационная |
специальное |
115478, Москва, Каширское шоссе, д.24, стр. 16. |
3,9 |
Температура, влажность, давление |
Приточно-вытяжная вентиляция |
Свидетельство о гос. регистрации права от 30.01.2013 г. № 77-АО 490119.Вид права: оперативное управление Выписка из ЕГРН от 04.06.2025г. No КУВИ-001/2025-117825004 |
- |
|
20 |
Малая операционная для экспериментальных работ |
специальное |
115478, Москва, Каширское шоссе, д.24, стр. 16. |
10,8 |
Температура, влажность, давление |
Приточно-вытяжная вентиляция |
Свидетельство о гос. регистрации права от 30.01.2013 г. № 77-АО 490119.Вид права: оперативное управление Выписка из ЕГРН от 04.06.2025г. No КУВИ-001/2025-117825004 |
- |
|
21 |
Помещение обеззараживания. Склад временного хранения отходов. |
специальное |
115478, Москва, Каширское шоссе, д.24, стр. 16. |
9,2 |
Температура, влажность, давление |
Приточно-вытяжная вентиляция |
Свидетельство о гос. регистрации права от 30.01.2013 г. № 77-АО 490119.Вид права: оперативное управление Выписка из ЕГРН от 04.06.2025г. No КУВИ-001/2025-117825004 |
- |
|
22 |
Помещение уборочного инвентаря для «грязных» помещений |
специальное |
115478, Москва, Каширское шоссе, д.24, стр. 16. |
4 |
Температура, влажность, давление |
Приточно-вытяжная вентиляция |
Свидетельство о гос. регистрации права от 30.01.2013 г. № 77-АО 490119.Вид права: оперативное управление Выписка из ЕГРН от 04.06.2025г. No КУВИ-001/2025-117825004 |
- |
|
24 |
Помещение хранения подстилок |
специальное |
115478, Москва, Каширское шоссе, д.24, стр. 16. |
5,2 |
Температура, влажность, давление |
Приточно-вытяжная вентиляция |
Свидетельство о гос. регистрации права от 30.01.2013 г. № 77-АО 490119.Вид права: оперативное управление Выписка из ЕГРН от 04.06.2025г. No КУВИ-001/2025-117825004
|
- |
|
25 |
Коридор |
специальное |
115478, Москва, Каширское шоссе, д.24, стр. 16. |
13,8 |
Температура, влажность, давление |
Приточно-вытяжная вентиляция |
Свидетельство о гос. регистрации права от 30.01.2013 г. № 77-АО 490119.Вид права: оперативное управление Выписка из ЕГРН от 04.06.2025г. No КУВИ-001/2025-117825004 |
- |
|
26 |
Лестничная клетка |
специальное |
115478, Москва, Каширское шоссе, д.24, стр. 16. |
40,7 |
Температура, влажность, давление |
Приточно-вытяжная вентиляция |
Свидетельство о гос. регистрации права от 30.01.2013 г. № 77-АО 490119.Вид права: оперативное управление Выписка из ЕГРН от 04.06.2025г. No КУВИ-001/2025-117825004 |
- |
|
27 |
Помещение уборочного инвентаря для «чистых» помещений |
специальное |
115478, Москва, Каширское шоссе, д.24, стр. 16. |
3,3 |
Температура, влажность, давление |
Приточно-вытяжная вентиляция |
Свидетельство о гос. регистрации права от 30.01.2013 г. № 77-АО 490119.Вид права: оперативное управление Выписка из ЕГРН от 04.06.2025г. No КУВИ-001/2025-117825004 |
- |
|
28 |
Гардеробная. Шлюз для персонала |
специальное |
115478, Москва, Каширское шоссе, д.24, стр. 16. |
8 |
Температура, влажность, давление |
Приточно-вытяжная вентиляция |
Свидетельство о гос. регистрации права от 30.01.2013 г. № 77-АО 490119.Вид права: оперативное управление Выписка из ЕГРН от 04.06.2025г. No КУВИ-001/2025-117825004 |
- |
|
29 |
Коридор |
специальное |
115478, Москва, Каширское шоссе, д.24, стр. 16. |
3,5 |
Температура, влажность, давление |
Приточно-вытяжная вентиляция |
Свидетельство о гос. регистрации права от 30.01.2013 г. № 77-АО 490119.Вид права: оперативное управление Выписка из ЕГРН от 04.06.2025г. No КУВИ-001/2025-117825004 |
- |
|
30 |
Коридор. Шлюз для отходов |
специальное |
115478, Москва, Каширское шоссе, д.24, стр. 16. |
3,5 |
Температура, влажность, давление |
Приточно-вытяжная вентиляция |
Свидетельство о гос. регистрации права от 30.01.2013 г. № 77-АО 490119.Вид права: оперативное управление Выписка из ЕГРН от 04.06.2025г. No КУВИ-001/2025-117825004 |
- |
|
1 |
Препараторская (приготовление дез.растворов) |
специальное |
115478, Москва, Каширское шоссе, д.24, стр. 16. |
5.4 |
|
Приточно-вытяжная вентиляция |
Свидетельство о гос. регистрации права от 30.01.2013 г. № 77-АО 490119.Вид права: оперативное управление Выписка из ЕГРН от 04.06.2025г. No КУВИ-001/2025-117825004 |
- |
|
2 |
Моечная |
специальное |
115478, Москва, Каширское шоссе, д.24, стр. 16. |
17.0 |
Температура, влажность, давление |
Приточно-вытяжная вентиляция |
Свидетельство о гос. регистрации права от 30.01.2013 г. № 77-АО 490119.Вид права: оперативное управление Выписка из ЕГРН от 04.06.2025г. No КУВИ-001/2025-117825004 |
- |
|
3 |
Коридор |
специальное |
115478, Москва, Каширское шоссе, д.24, стр. 16. |
29.2 |
|
Приточно-вытяжная вентиляция |
Свидетельство о гос. регистрации права от 30.01.2013 г. № 77-АО 490119.Вид права: оперативное управление Выписка из ЕГРН от 04.06.2025г. No КУВИ-001/2025-117825004 |
- |
|
4 |
Приготовление и розлив питательных сред |
специальное |
115478, Москва, Каширское шоссе, д.24, стр. 16. |
21.7 |
Температура, влажность, давление |
Приточно-вытяжная вентиляция |
Свидетельство о гос. регистрации права от 30.01.2013 г. № 77-АО 490119.Вид права: оперативное управление Выписка из ЕГРН от 04.06.2025г. No КУВИ-001/2025-117825004 |
- |
|
5 |
Хранение и проверка стерильности питательных сред |
специальное |
115478, Москва, Каширское шоссе, д.24, стр. 16. |
10.7 |
Температура, влажность, давление |
Приточно-вытяжная вентиляция |
Свидетельство о гос. регистрации права от 30.01.2013 г. № 77-АО 490119.Вид права: оперативное управление Выписка из ЕГРН от 04.06.2025г. No КУВИ-001/2025-117825004 |
- |
|
6 |
Бокс №1. Помещение 6 Проведение исследований питательный сред |
специальное |
115478, Москва, Каширское шоссе, д.24, стр. 16. |
12.0 |
Температура, влажность, давление |
Приточно-вытяжная вентиляция Подача и отвод стерильного воздуха через стерилизующие фильтры |
Свидетельство о гос. регистрации права от 30.01.2013 г. № 77-АО 490119.Вид права: оперативное управление Выписка из ЕГРН от 04.06.2025г. No КУВИ-001/2025-117825004 |
- |
|
7 |
Бокс №2. Помещение 7 Проведение исследований стерильности МИ |
специальное |
115478, Москва, Каширское шоссе, д.24, стр. 16. |
12.0 |
Температура, влажность, давление |
Приточно-вытяжная вентиляция Подача и отвод стерильного воздуха через стерилизующие фильтры |
Свидетельство о гос. регистрации права от 30.01.2013 г. № 77-АО 490119.Вид права: оперативное управление Выписка из ЕГРН от 04.06.2025г. No КУВИ-001/2025-117825004 |
- |
|
8 |
Бокс №3. Помещение 8 Проведение исследований контаминации МИ |
специальное |
115478, Москва, Каширское шоссе, д.24, стр. 16. |
12.0 |
Температура, влажность, давление |
Приточно-вытяжная вентиляция Подача и отвод стерильного воздуха через стерилизующие фильтры |
Свидетельство о гос. регистрации права от 30.01.2013 г. № 77-АО 490119.Вид права: оперативное управление Выписка из ЕГРН от 04.06.2025г. No КУВИ-001/2025-117825004 |
- |
|
9 |
Предбокс |
специальное |
115478, Москва, Каширское шоссе, д.24, стр. 16. |
2,5 |
|
Приточно-вытяжная вентиляция |
Свидетельство о гос. регистрации права от 30.01.2013 г. № 77-АО 490119.Вид права: оперативное управление Выписка из ЕГРН от 04.06.2025г. No КУВИ-001/2025-117825004 |
- |
|
10 |
Стерилизационная (питательных сред и лабораторной посуды) |
специальное |
115478, Москва, Каширское шоссе, д.24, стр. 16. |
6.3 |
Температура, влажность, давление |
Приточно-вытяжная вентиляция |
Свидетельство о гос. регистрации права от 30.01.2013 г. № 77-АО 490119.Вид права: оперативное управление Выписка из ЕГРН от 04.06.2025г. No КУВИ-001/2025-117825004 |
- |
|
11 |
Предбокс |
специальное |
115478, Москва, Каширское шоссе, д.24, стр. 16. |
2,7 |
Температура, влажность, давление |
Приточно-вытяжная вентиляция |
Свидетельство о гос. регистрации права от 30.01.2013 г. № 77-АО 490119.Вид права: оперативное управление Выписка из ЕГРН от 04.06.2025г. No КУВИ-001/2025-117825004 |
- |
|
12 |
Холодильники для хранения питательных сред и диагностических препаратов |
специальное |
115478, Москва, Каширское шоссе, д.24, стр. 16. |
6.6 |
Температура, влажность, давление |
Приточно-вытяжная вентиляция |
Свидетельство о гос. регистрации права от 30.01.2013 г. № 77-АО 490119.Вид права: оперативное управление Выписка из ЕГРН от 04.06.2025г. No КУВИ-001/2025-117825004 |
- |
|
13 |
Автоклавная (обеззараживание отходов) |
специальное |
115478, Москва, Каширское шоссе, д.24, стр. 16. |
9.3 |
|
Приточно-вытяжная вентиляция |
Свидетельство о гос. регистрации права от 30.01.2013 г. № 77-АО 490119.Вид права: оперативное управление Выписка из ЕГРН от 04.06.2025г. No КУВИ-001/2025-117825004 |
- |
|
13.1 |
Автоклавная (обеззараживание отходов) |
специальное |
115478, Москва, Каширское шоссе, д.24, стр. 16. |
9.3 |
Температура, влажность, давление |
Приточно-вытяжная вентиляция |
Свидетельство о гос. регистрации права от 30.01.2013 г. № 77-АО 490119.Вид права: оперативное управление Выписка из ЕГРН от 04.06.2025г. No КУВИ-001/2025-117825004 |
- |
|
14 |
Коридор |
специальное |
115478, Москва, Каширское шоссе, д.24, стр. 16. |
4.3 |
|
Приточно-вытяжная вентиляция |
Свидетельство о гос. регистрации права от 30.01.2013 г. № 77-АО 490119.Вид права: оперативное управление Выписка из ЕГРН от 04.06.2025г. No КУВИ-001/2025-117825004 |
- |
|
15 |
Комната для хранения расходных материалов |
специальное |
115478, Москва, Каширское шоссе, д.24, стр. 16. |
10 |
Температура, влажность, давление |
Приточно-вытяжная вентиляция |
Свидетельство о гос. регистрации права от 30.01.2013 г. № 77-АО 490119.Вид права: оперативное управление Выписка из ЕГРН от 04.06.2025г. No КУВИ-001/2025-117825004 |
- |
|
16 |
Временное хранение отходов |
специальное |
115478, Москва, Каширское шоссе, д.24, стр. 16. |
3.2 |
|
Приточно-вытяжная вентиляция |
Свидетельство о гос. регистрации права от 30.01.2013 г. № 77-АО 490119.Вид права: оперативное управление Выписка из ЕГРН от 04.06.2025г. No КУВИ-001/2025-117825004 |
- |
|
17 |
Уборочный инвентарь (хранение в «чистой» зоне) |
специальное |
115478, Москва, Каширское шоссе, д.24, стр. 16. |
1.3 |
|
Приточно-вытяжная вентиляция |
Свидетельство о гос. регистрации права от 30.01.2013 г. № 77-АО 490119.Вид права: оперативное управление Выписка из ЕГРН от 04.06.2025г. No КУВИ-001/2025-117825004 |
- |
|
18 |
Тех. Коридор |
специальное |
115478, Москва, Каширское шоссе, д.24, стр. 16. |
2,0 |
|
Приточно-вытяжная вентиляция |
Свидетельство о гос. регистрации права от 30.01.2013 г. № 77-АО 490119.Вид права: оперативное управление Выписка из ЕГРН от 04.06.2025г. No КУВИ-001/2025-117825004 |
- |
|
19 |
Раздевалка |
специальное |
115478, Москва, Каширское шоссе, д.24, стр. 16. |
5,0 |
|
Приточно-вытяжная вентиляция |
Свидетельство о гос. регистрации права от 30.01.2013 г. № 77-АО 490119.Вид права: оперативное управление Выписка из ЕГРН от 04.06.2025г. No КУВИ-001/2025-117825004
|
- |
|
20 |
Коридор |
специальное |
115478, Москва, Каширское шоссе, д.24, стр. 16. |
5,0 |
|
Приточно-вытяжная вентиляция |
Свидетельство о гос. регистрации права от 30.01.2013 г. № 77-АО 490119.Вид права: оперативное управление Выписка из ЕГРН от 04.06.2025г. No КУВИ-001/2025-117825004 |
- |
|
21 |
Душевая |
специальное |
115478, Москва, Каширское шоссе, д.24, стр. 16. |
5,0 |
Температура, влажность, давление |
Приточно-вытяжная вентиляция |
Свидетельство о гос. регистрации права от 30.01.2013 г. № 77-АО 490119.Вид права: оперативное управление Выписка из ЕГРН от 04.06.2025г. No КУВИ-001/2025-117825004 |
- |
|
22 |
Санузел |
специальное |
115478, Москва, Каширское шоссе, д.24, стр. 16. |
5,0 |
Температура, влажность, давление |
Приточно-вытяжная вентиляция |
Свидетельство о гос. регистрации права от 30.01.2013 г. № 77-АО 490119.Вид права: оперативное управление Выписка из ЕГРН от 04.06.2025г. No КУВИ-001/2025-117825004 |
- |
|
23 |
Санитарный пропускник |
специальное |
115478, Москва, Каширское шоссе, д.24, стр. 16. |
5,0 |
|
Приточно-вытяжная вентиляция |
Свидетельство о гос. регистрации права от 30.01.2013 г. № 77-АО 490119.Вид права: оперативное управление Выписка из ЕГРН от 04.06.2025г. No КУВИ-001/2025-117825004 |
- |
|
24 |
Уборочный инвентарь (хранение в «грязной» зоне) |
специальное |
115478, Москва, Каширское шоссе, д.24, стр. 16. |
2,7
|
|
Приточно-вытяжная вентиляция |
Свидетельство о гос. регистрации права от 30.01.2013 г. № 77-АО 490119.Вид права: оперативное управление Выписка из ЕГРН от 04.06.2025г. No КУВИ-001/2025-117825004 |
- |
|
25 |
Шлюз для материалов |
специальное |
115478, Москва, Каширское шоссе, д.24, стр. 16. |
2,0 |
|
Приточно-вытяжная вентиляция |
Свидетельство о гос. регистрации права от 30.01.2013 г. № 77-АО 490119.Вид права: оперативное управление Выписка из ЕГРН от 04.06.2025г. No КУВИ-001/2025-117825004 |
- |
|
27 |
Комната для идентификации микроорганизмов |
специальное |
115478, Москва, Каширское шоссе, д.24, стр. 16. |
7,0 |
Температура, влажность, давление |
Приточно-вытяжная вентиляция |
Свидетельство о гос. регистрации права от 30.01.2013 г. № 77-АО 490119.Вид права: оперативное управление Выписка из ЕГРН от 04.06.2025г. No КУВИ-001/2025-117825004 |
- |
|
26 |
Прием и регистрация материала (проб) |
специальное |
115478, Москва, Каширское шоссе, д.24, стр. 16. |
23.7 |
Температура, влажность, давление |
Приточно-вытяжная вентиляция |
Свидетельство о гос. регистрации права от 30.01.2013 г. № 77-АО 490119.Вид права: оперативное управление Выписка из ЕГРН от 04.06.2025г. No КУВИ-001/2025-117825004 |
- |
|
28 |
Предбокс |
специальное |
115478, Москва, Каширское шоссе, д.24, стр. 16. |
2,5 |
Температура, влажность, давление |
Приточно-вытяжная вентиляция |
Свидетельство о гос. регистрации права от 30.01.2013 г. № 77-АО 490119.Вид права: оперативное управление Выписка из ЕГРН от 04.06.2025г. No КУВИ-001/2025-117825004 |
- |
|
29 |
Шлюз для подачи стерильных питательных сред и растворов |
специальное |
115478, Москва, Каширское шоссе, д.24, стр. 16. |
2.1 |
Температура, влажность, давление |
Приточно-вытяжная вентиляция |
Свидетельство о гос. регистрации права от 30.01.2013 г. № 77-АО 490119.Вид права: оперативное управление Выписка из ЕГРН от 04.06.2025г. No КУВИ-001/2025-117825004 |
- |



No comments to display
No comments to display